The Skillearn School
The Skillearn School
Various Locations | IN
1 acre
2500 sq.m
2011
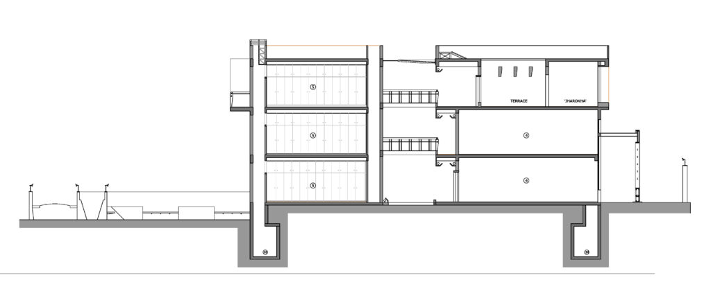
Derived from “ Skill + Learn + Earn”, this vocational school is a departure from the mundane vocational colleges in India. The building is organized around a central garden and is daylit making for a bright and lively learning environment.
Project Brief:
The Project Brief required the design of a skill training centre prototype to be built at various locations across India.
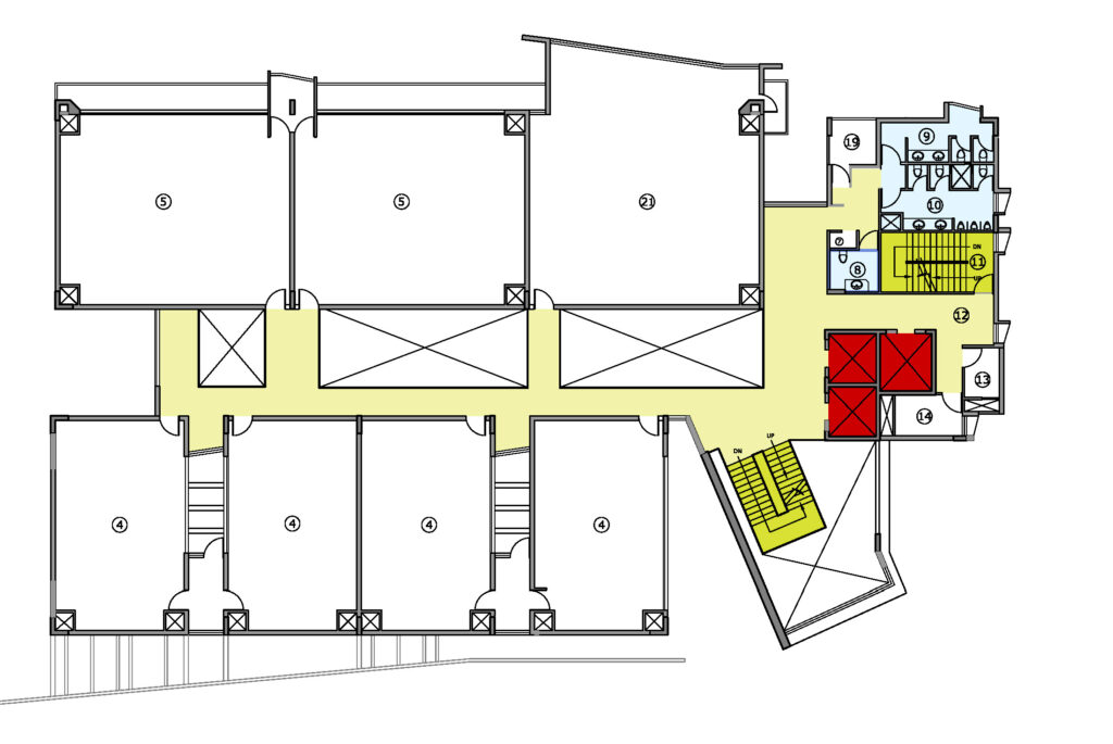
Program:
The various building components consisted of the following:
- Labs
- Classrooms
- Faculty Rooms
- Library
- Washrooms
- Utilities & Services
Design Ideation:
The design ideation is premised on two key principles:
01: Beyond mere ‘Building’
The School has been conceptualized as a holistic learning ‘environment’ and not just an exemplary
iconic built form. The central idea is therefore creation of a metaphoric ‘GARDEN OF FIVE ELEMENTS’ within which space and light play to create a beautiful world for students to learn in…..
02 : Beyond mere ‘workers’
The School intends to redefine the paradigm of a vocational college as a neglected building in which
unskilled, and college drop-out people are trained as ‘workers’ to earn money to a beautiful space in which building and landscape are woven where these very people along with slum children and people employed in non productive jobs will be imparted knowledge that will transform them into DESIGNERS who will INNOVATE in their respective fields of specialization.





