Haryana | IN
1 acre
4000 sq.m
2013
A Community level facility to function as a congregation space for residents of various localities in Haryana. A scaled amenity with a play of fenestration to impart a transparent look and feel.
Project Brief:
The Project Brief required the design of a community centre prototype.
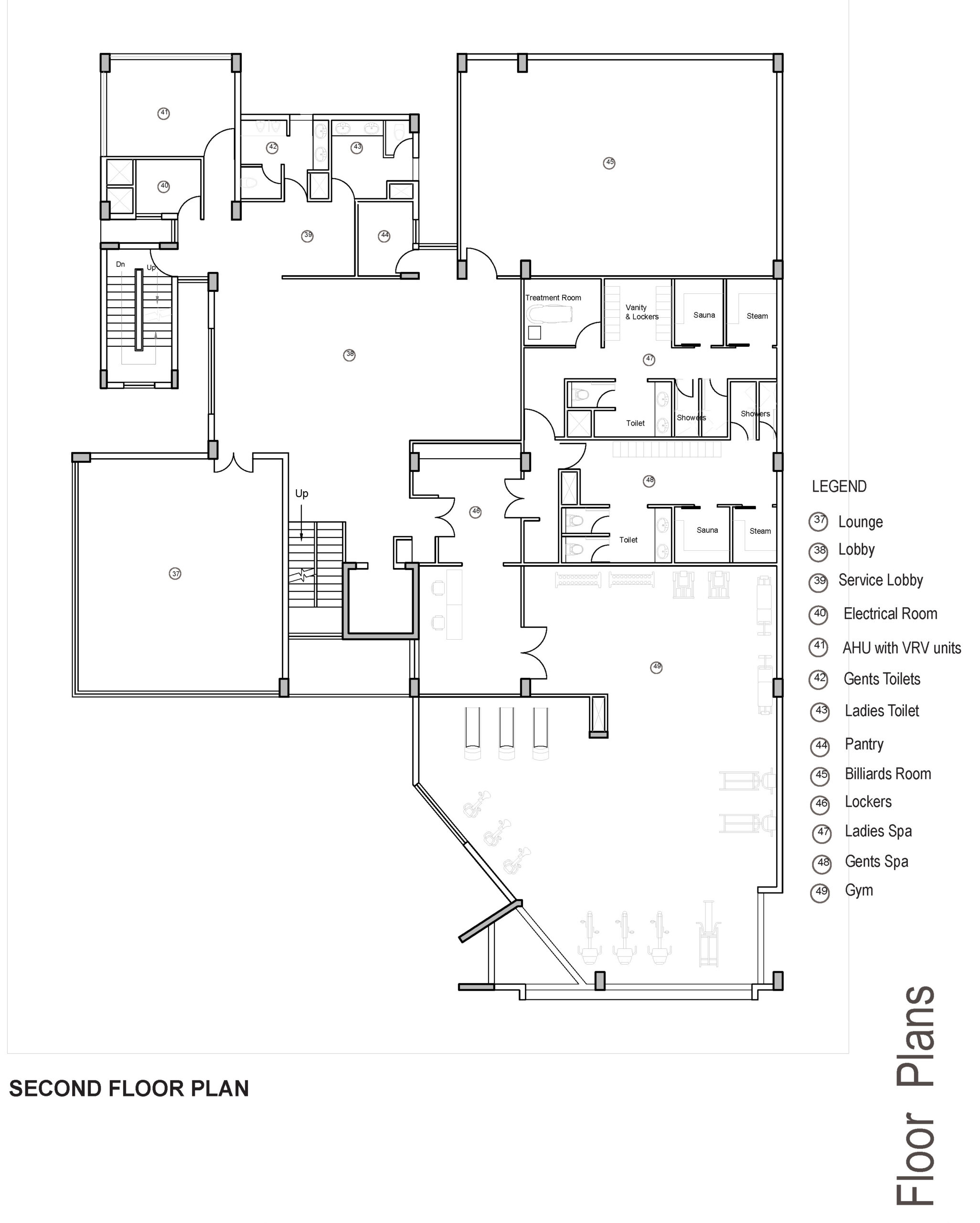
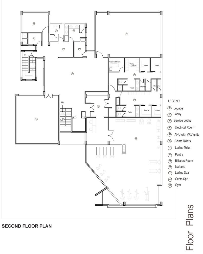
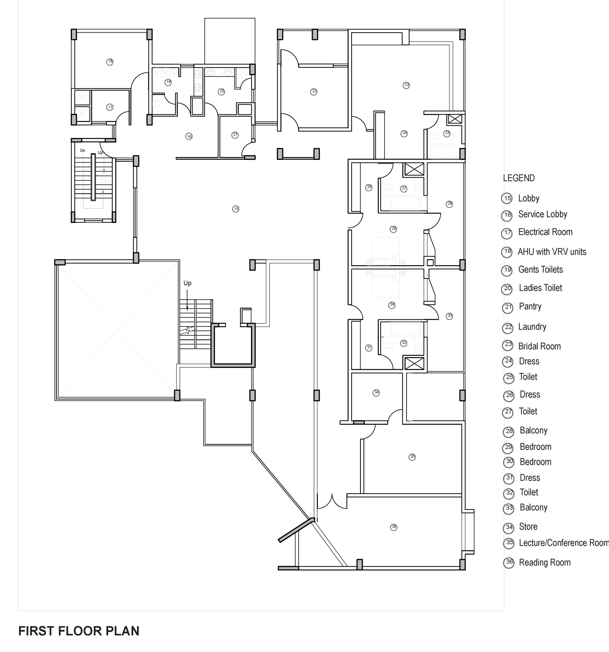
Program:
Multipurpose Hall for holding functions
- Space for racquet indoor games like Badminton, Squash, Table Tennis
- Space for outdoor sports like basketball, lawn tennis etc.
- Small conference/Lecture Room/Reading Room
- Gymnasium
- Impressive Entrance Lounge
- Bridal Room and 2 suites with attached toilets
- Public Washrooms
Design Ideation:
The concept centered on creation of a compact urban form with a double height glass paneled spacious entrance lounge as the focal meeting space for the community. Half the site was allocated for outdoor sports courts.






