KenCada International Academy, Kenya
KenCada International Academy, Kenya
Mombasa | Kenya
5 acres
12,000 sq.m
2017
This project required ideation to develop an effective space that has the potential to dynamically influence student learning, as opposed to passively providing a venue for it. The key driver of the design was that through a flexible, thoughtful design, the building will be a teacher in itself.
Project Brief:
Design of a new campus for the KenCada International Academy that will serve as a learning space for its young students in Mombasa, Kenya.
Program:
Multipurpose Hall for holding functions
- Classrooms
- Staff Room
- Maker Space
- Library
- Administrative Spaces
- Washrooms
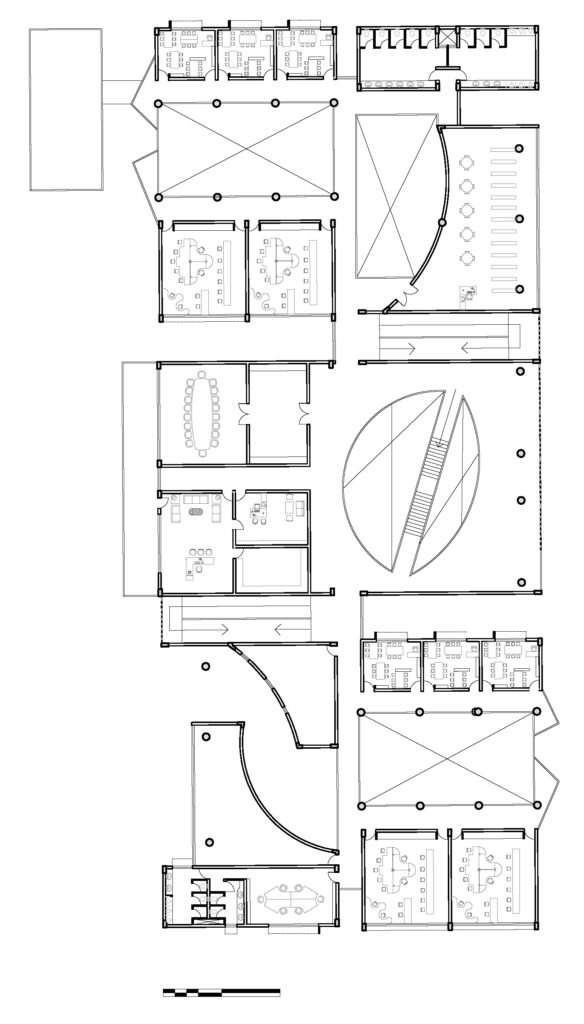
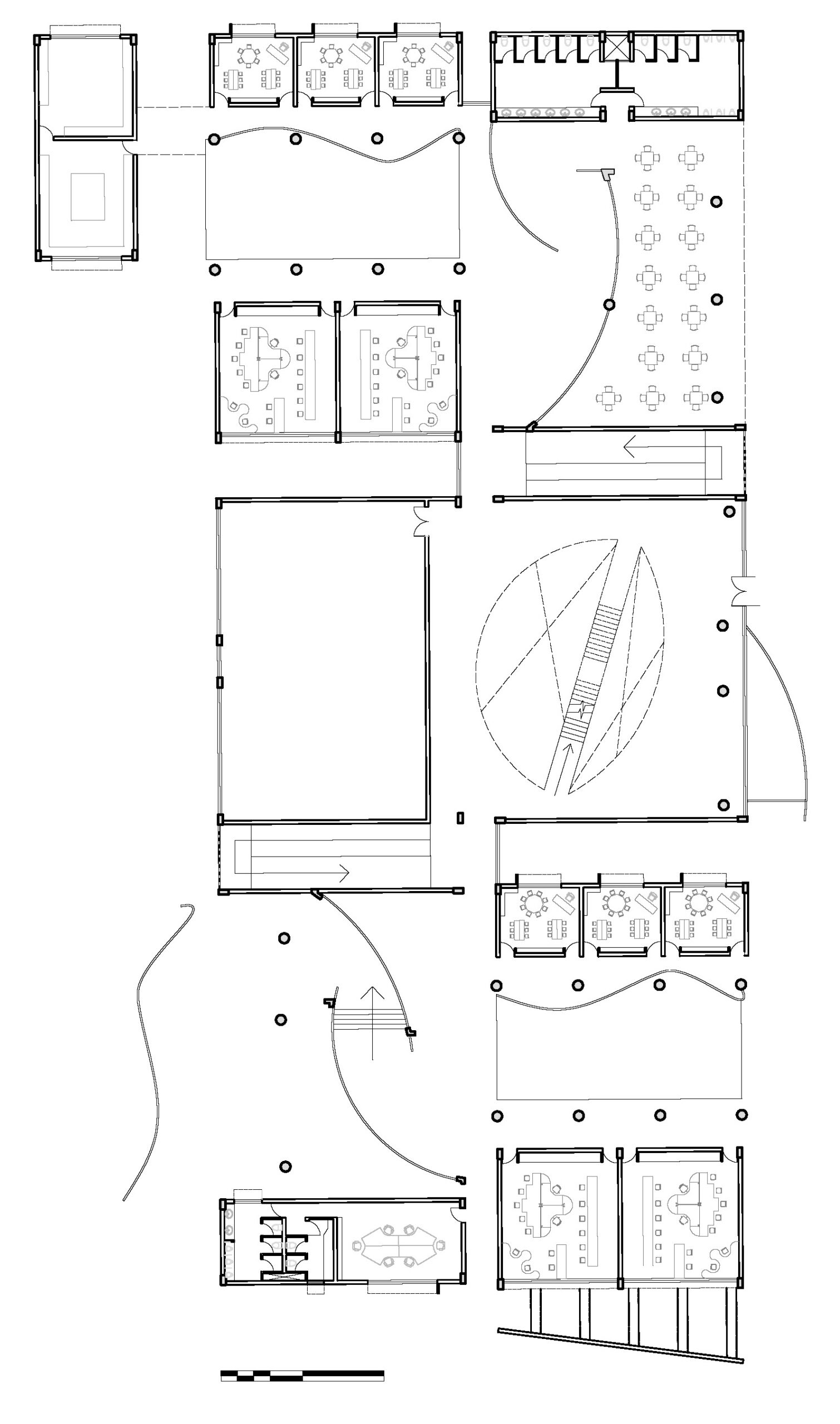
Design Ideation:
The planning grid is largely rectilinear to allow for maximum flexibility. The sizing of the learning spaces is based on the maximum number of students i.e. 24 in the upper standards. In doing so provision is already made for accommodating a larger number of Baby and KG Class students in future in the proposed building itself. The Baby and KG classes are planned on the Ground Floor while the learning spaces for the upper grade students are located on the upper floors.
A central feature of the design is the Atrium in the Entrance Hall which contains the linear staircase connecting the two floors of the building. This forms the primary journey path through the building. This atrium is covered by a tensile fabric which has been modelled on the principles of Bezier Surfaces. These complex elements are proposed to inculcate an attitude of innovation in kids. The ramps also allow for the young ones to enjoy diverse spatial experiences. A series of low garden walls are planned as the edges of the semi-covered spaces and in the courtyards.








